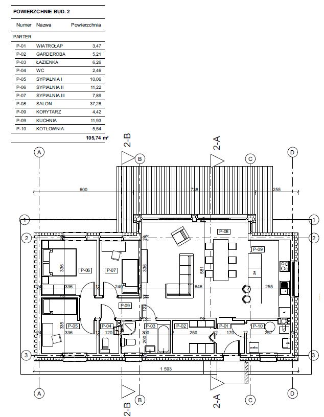
COSY WHITE
Mówiąc najprościej Przytulny Dom. Twoje wymarzone cztery ściany, które pomożemy Ci wybudować. Firma WHITE HOUSE ma dla Ciebie dom parterowy z możliwością zagospodarowania poddasza do 30m2. Nasi projektanci prężnie pracowali nad idealnym układem pomieszczeń. Firma WHITE HOUSE oferuje dom gdzie znajdziemy trzy sypialnie o łącznej powierzchni 28,73m2 oraz garderobie która ma 4,89m2. Przechodząc dalej możemy zobaczyć salon mający 37m2 połączony z kuchnią o wielkości 11,93m2.
Wreszcie przechodzimy do kotłowni mającej 5,20m2. Znajdzie się też łazienka oraz dodatkowa toaleta.
Fundament to podstawa dobrze wykonanego budynku. Ocieplony XPS, o grubości 10cm, zapewnia nam odpowiednią izolację budynku poniżej gruntu o przenikliwości 0,38 lambda. Przede wszystkim wybieramy takie materiały ze względu na jego wytrzymałość, odporność na uszkodzenia mechaniczne oraz niską wchłanialność wilgoci.
Nasza firma opiera się na solidnym budownictwie dlatego naszym nierozłącznym elementem jest technika murarska. Stosujemy pustaki H+H, 240 mm na ściany nośne i 120mm na ściany działowe , czyli materiał wysoce nowoczesny, spełniający wszelkie wymogi bezpieczeństwa oraz izolacji. Cechy te przekładają się na energooszczędne budownictwo Jako iż skupiamy się na indywidualnym podejściu do klienta proponujemy możliwość dowolnej aranżacji wnętrza poprzez zastosowanie konstrukcji wiązarowej dachu. Propozycją nie do odrzucenia okazuje się być dach prefabrykowany, który zostaje przygotowany dużo wcześniej i przyjeżdża na plac budowy w odpowiednim dla niego momencie. Nieodzownym elementem tej układanki są dachówki. Jednymi z polecanych przez nas są firmy Ceraton oraz Roben. Uwieńczeniem górnej części budynku jest komin systemowy.
Zastosowanie celulozy o grubości 30cm, do ocieplenia stropu, pozwala nam na wysoką odporność przeciw niekorzystnej temperaturze oraz przenikaniem dźwięków do wnętrza budynku. Klasa termiczna do tej grubości to 0,14w\m2.
Ściany ocieplamy styropianem 20cm. Następnie warstwę tą przykrywamy białym tynkiem 1,5 mm CT74.
Instalacje elektryczne wykonujemy na dwa sposoby, albo używamy peszki, albo detem.
Tynki wewnętrzne wykonujemy tradycyjne bądź gipsowe. Po zakończeniu prac ściany w wersji podstawowej malujemy na biało.
Wylewki stosujemy anhydrytowe, cechujące się lepszym przenikaniem ciepła bądź tradycyjne.
Jeśli chodzi o okna dajemy siedmiokomorowe, trzyszybowe spełniające każde wymagania budowlane, a ich kolor to antracyt od zewnątrz, podobnie jak drzwi 1.0w/m2.
Dom został przystosowany pod różnego rodzaju sposoby ogrzewania takie jak:
– gaz
– eko groszek
– pelet
– pompa ciepła
– ogrzewanie podłogowe + ręcznikowiec łazienka
Nasza oferta obejmuje również budowanie z Państwa projektu oraz zajmuje się kompleksową budową: murów oporowych, ogrodzeń i wiele innych.



